DaiserLoft
DaiserLoft

DaiserLoft 20

 

 

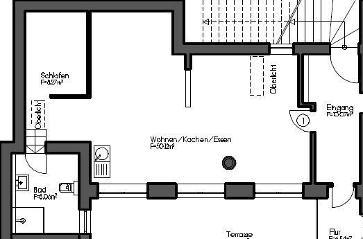
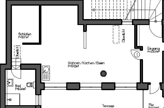
Das großzügige loftartige Apartment hat eine Gesamtgröße von ca. 76 qm. Es ist modern eingerichtet und verfügt neben einer modernen Küchenzeile über einen kleinen Schlafraum. Der Wohnraum ist hell und erhält durch die Deckenhöhe von bis zu 2,90 m einen loftartigen Charakter. Das Highlight im Bad ist die aufwendig restaurierte Gewölbedecke. Waschbecken, Dusche und WC kommen aus der Designlinie von Philippe Starck von Duravit und runden das hochwertige Bild ab.

 

Neben dem Apartment befindet sich eine ca. 31 qm große Terasse, die zum gemeinschaftlichen Verweilen und Entspannen einlädt.

 

 

 

 

 

 

 

 

Grundriss Daiserloft 20
Druckversion | Sitemap
© investmentgate financial services GmbH

Impressum | Datenschutzerklärung | Rechtliche Hinweise


Diese Homepage wurde mit IONOS MyWebsite erstellt.

Anrufen

E-Mail